Properties for Sale in Aspley

powered by Open2view.com
SOLD

South East
5
3
N/A
N/Asqm
5786sqm
South East
proudly marketed by
PRD nationwide Robina
ON TOP OF THE WORLD - BRILLIANT VIEWS - FABULOUS HOME
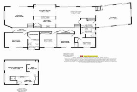
ON TOP OF THE WORLD - BRILLIANT VIEWS - FABULOUS HOME Perched high on Elanora Ridge with sensational ocean views overlooking the Currumbin Valley to Coolangatta and Tweed Heads, this residence has been completely renovated with Gold Coast living in mind. This home offers you and your family complete privacy and tranquility, whilst being moments away from beaches, shops, schools and all facilities the Southern Gold Coast offers. With three separate living areas for a comfortable family lifestyle (formal, informal, rumpus/media) plus two large alfresco dining areas, together with stunning views for Gold Coast entertaining. The newly completed designer kitchen amid stunning views will delight the "chef" with a mini butlers pantry, granite bench tops and stainless steel appliances. Five (5) spacious bedrooms, two with walk in robes and large ensuite. The main bathroom offers a deep spa for total relaxation. Huge 8m x 4m swimming pool surrounded by meandering timber boardwalks, frame beautiful tropical native gardens, abundant with natures wildlife. There is parking for four (4) cars with additional parking for leisure craft. All this on two (2) easy care acres and complete privacy. This home really deserves your inspection.
Question
Upload by Matt and Kylie Lyndon
Gold Coast
This property was photographed by
Matt and Kylie Lyndon
0431537226