Properties for Sale in Aspley

powered by Open2view.com
SOLD

South East
2
1
N/A
N/Asqm
N/Asqm
South East
proudly marketed by
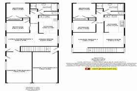
DELIGHTFUL DUPLEX - NO STAIRS
DELIGHTFUL DUPLEX - NO STAIRS Ground floor duplexes are like hens teeth and when you do actually find one, it's usually sold. Move quickly to secure this lovely home. Very neat and tidy with new paint and carpet throughout, the duplex is in wonderful condition. The spacious backyard offers room for a garden shed and pets to roam. Offering the convenience of buses 50m away and the beach just beyond, a simple 5 minute walk will have you in central Palm Beach amongst the shops, cafes and energy of a Gold Coast lifestyle. Currently leased at $350 per week no body corp fees) ** Neighbouring duplex on same site is also available for purchase Make an Offer!
Question
Upload by Cullen Lyndon
Broadbeach